Zum Verkauf steht ein Mehrfamilienhaus mit 04 WE und ein Einfamilienhaus mit Garten (ideal auch als Mehrgenerationshaus zu bewohnen). Getrennt oder komplett erwerbbar. Beide Gebäude sind zu Wohn- und zum Teil für Gewerbezwecke nutzbar.

100% vermietetes Mehrfamilienhaus in 06295 Lutherstadt Eisleben (Landkreis Mansfeld-Südharz)

Straßenansicht
Rückseite
Hofeinfahrt von innen
Hofeinfahrt Straßenseite 1
Hofeinfahrt Straßenseite 2
Hof mit Wäschetrockenplatz
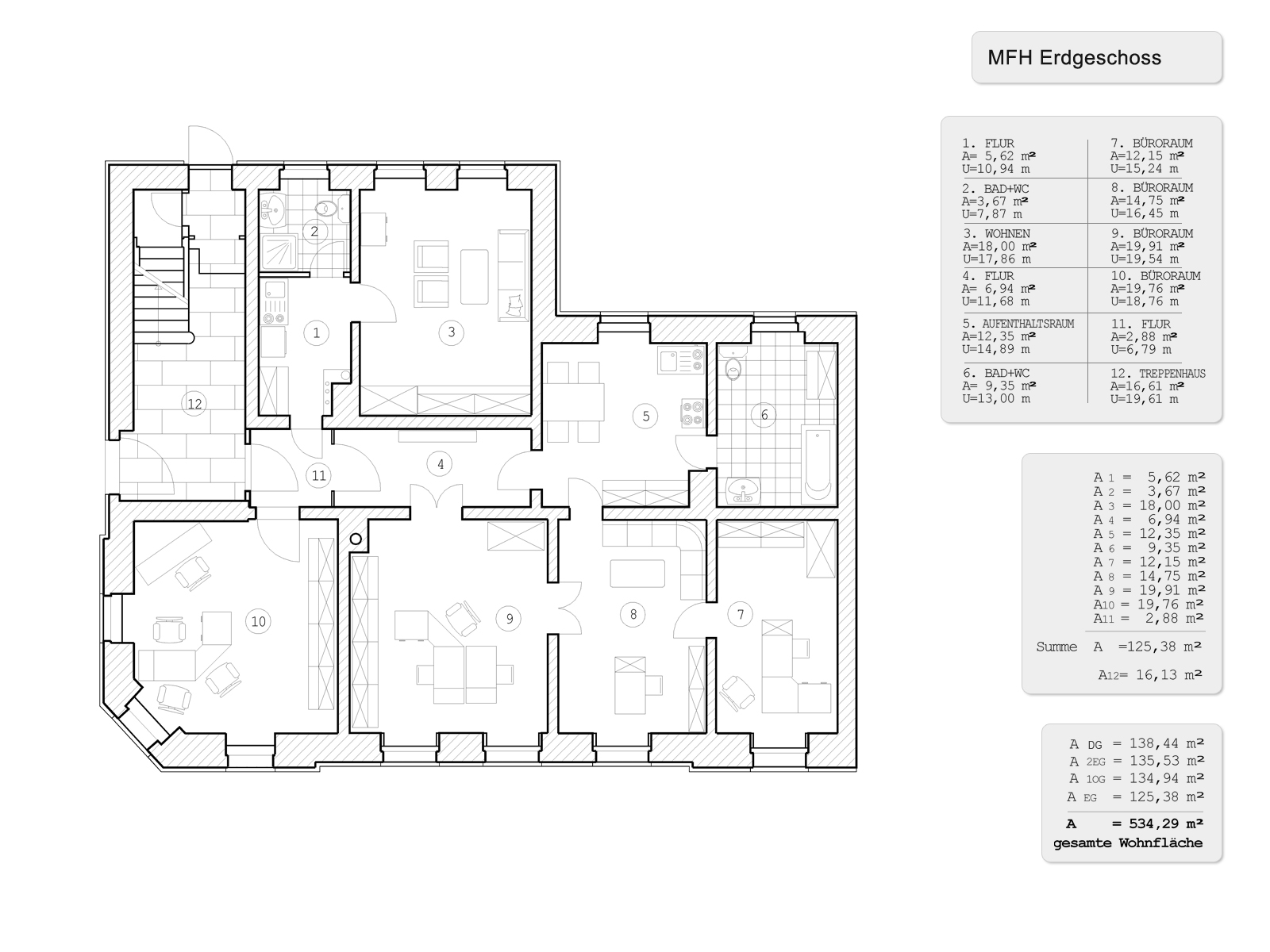
MFH Grundriss Erdgeschoss
MFH Grundriss 1. Obergeschoss
MFH Grundriss 2. Obergeschoss
MFH Grundriss Dachgeschoss
Kaufpreis: 270.000,00 €
Wohnfläche: ca. 540,00 m²
Grundstücksfl.: ca. 450,00 m²
Zimmer: 19
Baujahr: 1910
Sanierung: 1995 vollständig saniert

Ausstattungsmerkmale:

Fenster: Holz (Wärme- und Schallschutzverglasung)
Installationen: - zentrale Heizungs- und Warmwasseranlage (Brennstoff Erdgas)
- Sanitärinstallation (Wasser- und Abwasserleitungen,
  Duschen und Badewannen, Waschtische, TS-WC)
- Elektroinstallation
- zentrale SAT-Anlage ist vorbereitet
Fassade: Vollwärmeschutz
Verwaltung: durch Hausverwaltung
PKW-Stellplätze: können separat im Hof vermietet werden.
Zimmer: Schlafzimmer: 14, Wohnzimmer: 05, Küchen: 05, Bäder: 05
Energieausweis: wird bereitgestellt.

Lage:

Lutherstadt Eisleben liegt im Landkreis Mansfeld-Südharz, im südlichen Harzvorland, im Bundesland Sachsen-Anhalt. Bekannt ist sie als Geburts- und Sterbeort von Martin Luther. Eisleben zählt zusammen mit der Lutherstadt Wittenberg seit 1996 zum UNESCO-Weltkulturerbe. Die Lutherstätten in Eisleben und Wittenberg haben sich zusammen zur Lutherstiftung des Landes Sachsen-Anhalt vereint. In und um Eisleben gibt es eine Vielzahl historischer Baudenkmäler sowie geschichtsträchtige Sehenswürdigkeiten. Erwähnenswert ist auch das Kloster Helfta, ein Frauenkloster in der Lutherstadt Eisleben. Das Kloster wurde 1229 bei Mansfeld gegründet und 1258 nach Helfta verlegt. Der Wiederaufbau der Klosterkirche, des Konventsgebäudes und des Kreuzganges begann 1998 unter der Schirmherrschaft des Bischofs von Magdeburg, Leo Nowak. Nach 457 Jahren bezogen am 14. August 1999 Zisterzienserinnen aus Kloster Seligenthal (Landshut) das Kloster und bildeten eine neue Gemeinschaft unter der Äbtissin Maria Assumpta Schenkl. Eisleben ist durch eine günstige Verkehrsanbindung (Eisleben liegt an den Bundesstraßen B 80/B 180, von der Autobahn A 38 ca. 11 km) gut und schnell zu erreichen. Eisleben hat einen Bahnhof an der Bahnstrecke Halle (Saale) - Kassel (Halle-Kasseler Eisenbahn). Naherholungsgebiete wie der Süße See sind mit dem Fahrrad oder mit dem Auto in kurzer Zeit zu erreichen.

Verkauf von Einfamilienhaus in 06295 Lutherstadt Eisleben (Landkreis Mansfeld-Südharz). Das Einfamilienhaus wird momentan noch von dem Eigentümer selbst bewohnt.

Vorderseite vom gemeinsamen Hof
Vorderseite vom gemeinsamen Hof Bild 2
Garten
Wintergarten
Bad im 1. Obergeschoss
Bad im 2. Obergeschoss
Bad im 2. Obergeschoss
Wintergarten Rückseite
Garageneinfahrt
Wohnzimmer mit Durchgang zum Wintergarten
Wohnzimmer im 1. OG
Zimmer im 2. OG
EFH Grundriss Ergeschoss
EFH Grundriss 1. Obergeschoss
EFH Grundriss 2. Obergeschoss
Kaufpreis: 250.000,00 €
Wohnfläche: ca. 270,00 m²
Grundstücksfl.: ca 622,00 m²
Zimmer: 10
Baujahr: 1910
Sanierung: 1997 vollständig saniert.

Ausstattungsmerkmale:

Fenster: aus Holz (Wärme- und Schallschutzverglasung)
Installationen: - zentrale Heizungs- und Warmwasseranlage (Brennstoff Erdgas)
- Sanitärinstallation (Wasser- und Abwasserleitungen,
  Duschen und Badewannen, Waschtische, TS-WC)
- Elektroinstallation
- zentrale SAT-Anlage ist vorbereitet
Fassade: Vollwärmeschutz
Decken: Trockenestrich (Teppichboden, Fliesen)
Dach: Warmdach
Wintergarten: Schüco-Wintergarten, beheizbar mit Warmdach
Energieausweis: wird bereitgestellt

Zimmeraufteilung (siehe Grundrisse):

Schlafzimmer: 02 Gäste-WC: 01
Wohnzimmer: 02 Fitnessraum: 01
Küchen: 02 Abstellraum: 01
Bäder: 02 Remise: 01
Wintergarten: 01 PKW-Garage: 01
Arbeitszimmer: 02

erstellt von